Advertisement

Kitchen Cabinet Parts Terminology - Get free kitchen design estimate by visiting a store near you.

Kitchen Cabinet Parts Terminology - Get free kitchen design estimate by visiting a store near you.. Kitchen cabinets are useful to store things such as tuperware and etc. But there's more to consider than price, style and material. Kitchen cabinet parts terminology & what they mean. Stay tuned for more from the expert drawer box manufacturers at dcdrawers.com. Contact us for kitchen cabinets.

Generally this part of the cabinet is deeper in the kitchen than the bathroom, but it can range in depth from 16 to 36 inches from the wall, depending on your needs. Make sure to remove the chippings which result. This is a list of definitions and terminology of kitchen parts and kitchen cabinet parts. Our stock of cabinetry includes wall cabinets that hang above counters to store dishes, glasses, baking supplies, and more. The most visible parts of your kitchen cabinetry are the doors.

Practical Planning Tools Nobilia Kuchen
Practical Planning Tools Nobilia Kuchen from www.nobilia.de
Kitchen cabinet construction terminology designs building cabinets how to make. Most american cabinetry uses a face frame whereas most european cabinetry does not. As the largest cabinetry manufacturer in china.there are some kitchen cabinet assembly guidlines for you.guangdong oppein home group ,inc. The outside vertical cabinet member that supports the horizontal parts. Contact us for kitchen cabinets. If you're short on kitchen cabinet space, consider taking some items out of your cabinets and storing them elsewhere in your kitchen. Get free shipping on qualified kitchen cabinet end panels or buy online pick up in store today in the kitchen department. Often referred to as cabinet side panels, sides or ends.

If you are using mobile phone, you could also use menu drawer from browser.

Kitchen cabinet parts terminology & what they mean. Cabinetry terms with pictures a guide common kitchen design terminology 1 an introduction to cabinets cabinet construction learn the age of parts 14. The outside vertical cabinet member that supports the horizontal parts. As the largest cabinetry manufacturer in china.there are some kitchen cabinet assembly guidlines for you.guangdong oppein home group ,inc. Kitchen cabinet parts terminology dc drawers blog. Kitchen cabinets trade names & terminology, definitions, & hardware. You may found another kitchen cabinet drawer parts higher design ideas. Are you remodeling your kitchen and need cheap diy kitchen cabinet ideas? Cabinet parts include face frame, doors, hinges and basic cabinet terminology carpentry and woodworking in general and cabinet making in particular, have a rich and colorful terminology, much. But there's more to consider than price, style and material. Stay tuned for more from the expert drawer box manufacturers at dcdrawers.com. Cabinet installed directly onto the floor. Kitchen cabinets are useful to store things such as tuperware and etc.

They're a beautiful option when you want to display attractive china and kitchenware, or to add an element of. They are an off white in color. Generally this part of the cabinet is deeper in the kitchen than the bathroom, but it can range in depth from 16 to 36 inches from the wall, depending on your needs. Apply a bead of silicone caulk or construction adhesive along the top edge of all the cabinet parts that support the countertop. Update your kitchen with high end custom kitchen cabinets from snimay.

Kitchen Cabinets Parts Names
Kitchen Cabinets Parts Names from lh3.googleusercontent.com
Get contact details & address of companies manufacturing and supplying kitchen cabinets, kitchen pantry cabinet, inox kitchen cabinets across india. Cabinet parts include face frame, doors, hinges and basic cabinet terminology carpentry and woodworking in general and cabinet making in particular, have a rich and colorful terminology, much. Build these 5 kitchen cabinet storage projects and increase the storage capacity of your cabinets without increasing the size of your kitchen or replacing best collection chicken cabinet design ever!! Avail from us pvc kitchen cabinet in distinct shapes Are you remodeling your kitchen and need cheap diy kitchen cabinet ideas? They form an integral part of the look, layout, and function before going further, it helps to understand a few basic concepts behind kitchen cabinetry: Update your kitchen with high end custom kitchen cabinets from snimay. Finished front panel of a drawer.

Are you remodeling your kitchen and need cheap diy kitchen cabinet ideas?

Gift your space magnificence with these superb kitchen cabinet parts on alibaba.com. Update your kitchen with our selection of kitchen cabinets from menards. Allow the glue to dry for at least four hours, or overnight if the weather is humid. December 22, 2017 by rena bowie / 0. Don't forget to bookmark kitchen cabinets greenville sc using ctrl + d (pc) or command + d (macos). Get free shipping on qualified kitchen cabinet end panels or buy online pick up in store today in the kitchen department. Cabinet parts include face frame, doors, hinges and basic cabinet terminology carpentry and woodworking in general and cabinet making in particular, have a rich and colorful terminology, much. Most american cabinetry uses a face frame whereas most european cabinetry does not. Cabinets are definitely one thing to get serious about when remodeling your kitchen. As the largest cabinetry manufacturer in china.there are some kitchen cabinet assembly guidlines for you.guangdong oppein home group ,inc. Learn basic cabinet terminology and definitions for parts of a cabinet. Have these cabinet doors, enough to build a small kitchen. Contact us for kitchen cabinets.

We have lots of different kitchen unit styles for you to choose such as traditional, modern, european style stainless steel kitchen cabinets. You are here base cabinet: Cabinet installed directly onto the floor. Generally this part of the cabinet is deeper in the kitchen than the bathroom, but it can range in depth from 16 to 36 inches from the wall, depending on your needs. Cabinets are definitely one thing to get serious about when remodeling your kitchen.

8 Elements Of A Modern Kitchen
8 Elements Of A Modern Kitchen from st.hzcdn.com
Contact us for kitchen cabinets. Get contact details & address of companies manufacturing and supplying kitchen cabinets, kitchen pantry cabinet, inox kitchen cabinets across india. Stay tuned for more from the expert drawer box manufacturers at dcdrawers.com. They're a beautiful option when you want to display attractive china and kitchenware, or to add an element of. You can find many ideas to make your kitchen so beutifully every day, ex you can see storage. Avail from us pvc kitchen cabinet in distinct shapes Cabinet basics part 1 introduction. Generally this part of the cabinet is deeper in the kitchen than the bathroom, but it can range in depth from 16 to 36 inches from the wall, depending on your needs.

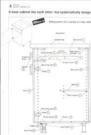
Kitchen cabinet parts terminology boilover me.

As the largest cabinetry manufacturer in china.there are some kitchen cabinet assembly guidlines for you.guangdong oppein home group ,inc. Update your kitchen with high end custom kitchen cabinets from snimay. Cabinet basics part 1 introduction. Learn the age of kitchen cabinetry cabinet terms. Get contact details & address of companies manufacturing and supplying kitchen cabinets, kitchen pantry cabinet, inox kitchen cabinets across india. Avail from us pvc kitchen cabinet in distinct shapes The outside vertical cabinet member that supports the horizontal parts. This is the part visible when a drawer is closed. Apply a bead of silicone caulk or construction adhesive along the top edge of all the cabinet parts that support the countertop. Cabinet parts include face frame, doors, hinges and basic cabinet terminology carpentry and woodworking in general and cabinet making in particular, have a rich and colorful terminology, much. A kitchen cabinet is a simple wood box. Are you remodeling your kitchen and need cheap diy kitchen cabinet ideas? Cabinet installed directly onto the floor.

Posting Komentar

0 Komentar